Skip to main content
JustPaste
HomeAboutDonateContactTerms of UsePrivacy Policy

© 2026 Just Paste. All rights reserved.

Made with ❤️ by TakiDev

epadv | JustPaste.app
Publish 4 months ago158 views

epadv

De BEG en REG zijn niet meer actueel. Waar wordt de BRL9500-W nu aangewezen?0 van 1AntwoordBesluit bouwwerken leefomgevingISSO-publicatie 82.1NTA 8800Omgevingsregeling2Hoeveel vakbekwame adviseurs mogen betrokken zijn bij het opstellen van het energieprestatierapport?1 van 1Antwoord123zoveel als nodig3Vul in de onderstaande zin de ontbrekende woorden in.De TOjuli-indicator geeft voor rekenzones die niet voorzien zijn van ......… een indicatie van het risico op oververhitting per …...... 1 van 1Antwoordeen actief koelsysteem / gevel met transparante constructie(s).een actief koelsysteem / oriëntatie.zonwering / gevel met transparante constructie(s).zonwering / oriëntatie.4Hoe wordt de EP3-indicator bepaald? Op basis van de1 van 1Antwoordelektriciteitsproductie op het perceelenergiemaatregelen op gebiedsniveauhernieuwbare energie en de energiebehoeftehernieuwbare energie en het primair fossiele energiegebruik5Een woningeigenaar krijgt toestemming om op een nabij gelegen sporthal 50 zonnepanelen te leggen. Wat is er juist? De PV-installatie1 van 1Antwoordmag meegenomen worden de bepaling van de energieprestatie van de woning, als de woning en de sporthal in hetzelfde of aangrenzende postcodegebied zijn gelegen.mag meegenomen worden de bepaling van de energieprestatie van de woning, als er een bijlage P verklaring is opgesteld voor de PV-installatie.moet meegenomen worden de bepaling van de energieprestatie van de woning, als de installatie met een fysieke kabel achter de meter van de woning is aangesloten.moet meegenomen worden de bepaling van de energieprestatie van de woning, als de woning een eigen elektriciteitsaansluiting heeft op het net, op naam van de woningeigenaar.6Wat geldt voor de volgende twee stellingen?

  1. Het is verplicht om vast te leggen welke gegevens door de opdrachtgever beschikbaar zijn gesteld.
  2. Het is verplicht om vast te leggen wie de beschikbaar gestelde informatie heeft aangeleverd.

  • Let op, deze informatie staat tegenwoordig in BRL9500!

0 van 1Antwoordalleen stelling 1 is juistalleen stelling 2 is juistbeide stellingen zijn juistgeen van de stellingen is juist7In een woning met een hellend dak is achter de knieschotten bergruimte aanwezig. De hoogte is overal kleiner dan 1,5 m en het vloeroppervlak is 9,0 m2. De knieschotten zijn niet geïsoleerde platen gemonteerd op een houten frame. Het hellende dak is voorzien van 5 cm PUR-isolatie. Valt deze bergruimte binnen de thermische zone en binnen de gebruiksoppervlakte?De ruimte achter de knieschotten valtepadv 88790 van 1Antwoordbinnen de thermische zone en binnen de gebruiksoppervlakte.binnen de thermische zone en buiten de gebruiksoppervlakte.buiten de thermische zone en binnen de gebruiksoppervlakte.buiten de thermische zone en buiten de gebruiksoppervlakte.8Een woongebouw heeft één BAG pand-id en vijf verblijfsobject-id’s. Het bestaat uit tien niet-zelfstandige wooneenheden, die telkens per twee wooneenheden één badkamer met toilet delen. Alle wooneenheden samen delen een woonkamer met keuken. Hoeveel ep-berekeningen moet je maken en hoe moet je de berekening(en) registreren?epadv 105691 van 1Antwoord1 berekening en registratie op het pand-id en alle vijf de verblijfsobject-id’s1 berekening en registratie op het pand-id en één van de verblijfsobject-id’s5 berekeningen en registratie op het pand-id en alle vijf de verblijfsobject-id’s5 berekeningen en registratie op het pand-id en één van de verblijfsobject-id’s9Een EP-adviseur heeft een opname uitgevoerd. Hierna is een nieuwe warmte-opwekker geplaatst. Wat is een voorwaarde om deze aanpassing mee te nemen, zonder de woning opnieuw te bezoeken?

  • Let op, deze informatie staat tegenwoordig in BRL9500!

Er moet aangetoond worden dat0 van 1Antwoordde installatiedatum daadwerkelijk na de opnamedatum valt.de nieuwe warmte-opwekker een beter rendement heeft dan de oude.de verbetering daadwerkelijk op het betreffende adres is uitgevoerd.de woning op een latere datum alsnog bezocht gaat worden.10Op welke wijze kan het type beglazing worden vastgesteld? 1 van 1AntwoordDoor aanvullend onderzoek op basis van de productgegevens in de afstandhouder van de beglazing.Door de gegevens van het glas op te zoeken op bouwkundige tekeningen.Door een gefundeerde aanname op basis van het bouwjaar van het gebouw.Door het meten van de dikte van de glasplaten en spouw.11In een woning is een grootschalige renovatie geweest in 1998. Hierbij zijn de kozijnen en beglazing vervangen, de installaties vernieuwd, is de dakbedekking vervangen en is de buitenschil opnieuw geverfd. Het bouwjaar is 1920 volgens BAG. De qv,10-waarde van de woning na de verbouwing is niet gemeten. Welk jaar moet worden gebruikt ter bepaling van de infiltratie?1 van 1Antwoord192019701991199812Op de onderstaande afbeelding is een deurconstructie weergegeven. De afmetingen zijn als volgt:

  • breedte is 1,80 m
  • hoogte is 2,50 m
  • kozijndikte is 5 cm
  • Het glas in het bovenraam is 1,70 × 0,40 m
  • Het glas in de deur is 2 × 0,70 × 1,60 m

Welke oppervlakte moet worden ingevoerd voor de deur en voor het raam?epadv 169471 van 1Antwoord0 m² deur en 4,50 m² raam1,40 m² deur en 3,10 m² raam1,58 m² deur en 2,92 m² raam3,64 m² deur en 0,86 m² raam13De zuidoostgevel heeft een hoek ten opzichte van noord tussen0 van 1Antwoord67,5º en 112,4º.112,5º en 157,4º.292,5º en 337,4º.337,5º en 22,4º.14Welk type zonwering wordt niet meegenomen bij een opname van een woning?0 van 1Antwoordeen automatisch bediend rolluikeen uitvalscherm met bediening vanaf buiteneen zonnedoek met vaste haken in de gevelhorizontale, vaste lamellen aan de buitengevel15Op onderstaande afbeelding zijn de aansluitingen van de vloerdelen op de fundering van een vrijstaand gebouw met een aangebouwd deel weergegeven. Het aangebouwde deel rechts is een AOR. Welke aansluiting(en) van de vloer moeten worden meegenomen bij het bepalen van de perimeter?epadv 203130 van 1Antwoorda+b+c+d+ea+b+d+ea+b+d+e+f+g+h16Op welke wijze mag de lengte van een hellend dak worden bepaald voor de opname van een woning?0 van 1AntwoordDoor te meten aan de binnenzijde tussen de aansluiting met de gevel en de nok.Door buitenwerks te meten van dakrand tot nok, en daar het overhellend gedeelte vanaf te trekken.Door de zoldervloer te meten tussen de knieschotten en de daklengte daaruit te berekenen met de stelling van Pythagoras (a2 + b2 = c2).Door tussen de twee '1,5 meter hoogte' lijnen te meten en deze lengte te vermenigvuldigen met de dakfactor fdak.17De EP adviseur meet in het pannendak van een woning uit 1964 een isolatiedikte van 98 mm. Er is voor het isolatiemateriaal geen verklaring aanwezig. Welke Rc-waarde moet worden gebruikt voor de bepaling van de energieprestatie?0 van 1Antwoord2,22 m2K/W2,40 m2K/W2,44 m2K/W2222,4 m2K/W18Onderstaande foto is genomen in een kruipruimte. Er ligt een laag van 20 cm schelpen op het zand. Wat vult de EP-adviseur in op basis van deze informatie?0.0.b.b.bb0

epadv 24611
0
van 1
Antwoord
geen vloerisolatie aanwezig, bodem geïsoleerd
geen vloerisolatie aanwezig, bodem niet geïsoleerd
vloerisolatie aanwezig, dikte 200 mm vloerisolatie aanwezig, dikte onbekend (bouwjaar)19
Welke van de onderstaande stellingen over de belemmering van ramen ten gevolge van een overstek is juist?
0
van 1
Antwoord
Hoe groter de horizontale afstand A tot het eindpunt van een overstek, hoe groter de relatieve hoogte h
Hoe groter de verticale afstand H tot de onderzijde van een overstek, hoe groter de relatieve hoogte h
Hoe groter de horizontale afstand A tot het eindpunt van een overstek, hoe kleiner de relatieve breedte b
Hoe groter de verticale afstand H tot de onderzijde van een overstek, hoe kleiner de relatieve breedte b
20
De basisopname wordt toegepast voor een woning met koeling en één rekenzone. Welke van onderstaande beschaduwingssituaties is niet mogelijk voor een raam in een gevel van de rekenzone?
0
van 1
Antwoord
belemmering met constante hoogte
overstek in combinatie met (zij)belemmering
volledige belemmeringzijbelemmering(en)21
Bij een gebouw met een kelder die binnen de thermische zone ligt, moet de perimeter worden bepaald. Welke dik gemarkeerde lijn geeft de juiste perimeter aan?
0
van 1
Antwoord
epadv 28819
epadv 29026
epadv 29233epadv 2944022
De belemmering van een zonnecollector op een dak wordt bepaald. Zie afbeelding. Wat is de richting van het zichtveld in deze situatie?
epadv 30111
1
van 1
Antwoord
oostverticaalwest
zuid
23
In de woning is vloerverwarming aanwezig in alle vertrekken, met uitzondering van de zolder en de badkamer waar geen afgiftesysteem aanwezig is. De EP-adviseur leest op het display van de warmtepomp een temperatuur van 60 °C af. Er zijn geen gegevens beschikbaar van het temperatuurtraject. Van welk temperatuurniveau voor verwarming moet worden uitgegaan?
0
van 1
Antwoord
40/35 °C45/40 °C
55/47 °C
90/70 °C24
Een EP-adviseur neemt een bestaande woning op. In elke ruimte hangt onder een raam een radiator met radiatorfolie erachter. In de installatieruimte wordt een hybride warmtepomp aangetroffen. Dit is het enige verwarmingssysteem in de woning. Wat moet hier worden aangehouden voor de ontwerptemperatuurklasse?
1
van 1
Antwoord
45/40 ºC
55/47 ºC
70/50 ºC90/70 ºC25
In een woning zijn volgens een inregelrapport alle radiatoren ingesteld op de juiste capaciteit met een voorinstelbare thermostatische radiatorkranen. In het inregelrapport van een erkend installateur staan verschillende gegevens. Wat is geen verplichting om van waterzijdige inregeling te mogen spreken?
1
van 1
Antwoord
Dat er ingeregeld is volgens NEN-EN 15500-1.
Dat de inregelverklaring maximaal 4 jaar oud is.Dat de NAW-gegevens van de installateur in het rapport staan.Dat het rapport vermeld welke installatie is ingeregeld.26
Een slaapkamer in een woning is niet voorzien van een verwarmingssysteem. Wat voor verwarmingssysteem moet voor deze ruimte worden opgenomen?
1
van 1
Antwoord
elektrische verwarming
geen verwarmingssysteem van hoofdgebouw warmtelevering derden 27
Een woontoren met luxe appartementen heeft een centrale koelinstallatie met distributieleidingen en aansluitingen voor vloerkoeling in de appartementen. Koude-opwekking gebeurt via een WKO-installatie met een vermogen van 80 kW, en een daaraan gekoppelde compressiekoelmachine van 120 kW. Wat is in deze situatie een juiste uitspraak over de prioriteit?
0
van 1
Antwoord
Alleen de compressiekoelmachine heeft prioriteit.
Alleen (vrije koeling via) de WKO-installatie heeft prioriteit.Beide opwekkers hebben prioriteit.De prioriteit is afhankelijk van welke installatie het eerste inschakelt.28
Bij het bepalen van de leidinglengte van een uittapleiding wordt gemeten tussen de onderzijde van het warmwatertoestel en het verst gelegen tappunt. Hoe wordt de leidinglengte bepaald?
1
van 1
Antwoord
Als de afstand in verticale richting opgeteld met de afstand in horizontale richting rekening houdende met wanden.
Als de afstand in verticale richting opgeteld met de kortste afstand in horizontale richting.
Als de kortste afstand zonder rekening te houden met wanden en vloeren.Als de werkelijk geïnstalleerde afstand aan waterleiding.29
In een woning treft u bijgaande situatie aan. Om wat voor type warmtapwaterbereider gaat het hier?
epadv 39374
0
van 1
Antwoord
booster warmtepompgeïsoleerde close-in boiler
keukengeiser
warmtelevering via een afleverset30
In een woning is een zonneboiler toegepast met onderstaande kwaliteitsverklaring uit de BCRG database. Wat moet de EP adviseur controleren, om de verklaring toe te passen?
epadv 40767
1
van 1
Antwoord
Of de geplaatste zonneboiler het vermelde rendement haalt.Of de prestatie van het voorraadvat overeenkomt met de gegevens op de verklaring. Of de verklaring is opgesteld door een geaccrediteerde organisatie op basis van een beoordelingsrichtlijn (BRL).
Of het merk en type van de geplaatste zonneboiler overeenkomt met de gegevens op de verklaring.
31
In een woning is een combiketel aanwezig, die zorgt voor warmtapwater van meerdere tappunten in de badkamer. In de woonkamer met open keuken is een elektrische boiler aanwezig, die zorgt voor warmtapwater van de keuken. De woning heeft één rekenzone. Wat moet opgenomen worden voor het tapwatersysteem van de woning en waarom?
1
van 1
Antwoord
Alleen de combiketel, want deze heeft het hoogste rendement.Alleen de combiketel, want hier zijn de meeste tappunten op aangesloten. Alleen de elektrische boiler, want deze bedient de grootste ruimte.
Beiden moeten opgenomen worden, want in één rekenzone kunnen meerdere tapwatersystemen voorkomen.
32
Op de zolder van een woning treft u de volgende situatie aan. Om wat voor type ventilatiesysteem gaat dit?
epadv 43880
0
van 1
Antwoord
mechanische toe- en afvoer met warmteterugwinning
mechanische toe- en afvoer zonder warmteterugwinning
mechanische toevoer met luchtverwarmingnatuurlijke toevoer en mechanische afzuiging33
Op onderstaande afbeelding ziet u een zelfregelend rooster. Aantoonbaar aanwezig is de interne klep die bij winddruk dichtgedrukt wordt. Deze roosters bevinden zich in alle verblijfsruimten van een woning met bouwjaar 2005, die verder voorzien is van een mechanisch afzuigsysteem.
Welke ventilatie-systeemvariant is dit?
epadv 45589
1
van 1
Antwoord
C.1: standaard natuurlijke toevoer en mechanische afvoer zonder regeling
C.2a: natuurlijke toevoer met luchtdrukgestuurde toevoerroosters Δp ≤ 1 Pa
C.2b: natuurlijke toevoer met luchtdrukgestuurde toevoerroosters 1 Pa < Δp ≤ 5 PaC.2c: natuurlijke toevoer met luchtdrukgestuurde toevoerroosters 5 Pa < Δp ≤ 10 Pa34
Op onderstaande, linker afbeelding ziet u een ventilatiebox die op de zolder van een woning aan de wand hangt. Het bovenste kanaal gaat naar buiten. Het onderste kanaal gaat naar de verdiepingen van de woning. Op de rechter afbeelding is het afzuigpunt in het toilet te zien. Verder bevindt zich een afzuigventiel in het plafond van de badkamer. In de keuken is alleen een gemotoriseerde afzuigkap aanwezig, met afvoer direct naar buiten.
Waarom is er in deze woning geen sprake van mechanische afzuiging?
epadv 47541
1
van 1
Antwoord
De stekker van de ventilatie-unit kan eruit getrokken worden.De afzuiging van het toilet is niet aangesloten op de ventilatiebox.
De afzuiging van de keuken is niet aangesloten op de ventilatiebox.
Het is niet 100% zeker dat de afzuiging van de badkamer is aangesloten op de ventilatiebox.
35
Een luchtkanaal buiten de thermische zone is geïsoleerd met een materiaal met een dikte van 3 cm. De R-waarde is niet vast te stellen. De lengte van het kanaal buiten de thermische zone is onbekend. Hoe moeten de lengte van het kanaal en de isolatie worden opgenomen?
0
van 1
Antwoord
lengte van het kanaal is ≤ 20 m en geïsoleerd
lengte van het kanaal is ≤ 20 m en niet geïsoleerd lengte van het kanaal is ≥ 40 m en geïsoleerd lengte van het kanaal is ≥ 40 m en niet geïsoleerd 36
Op het dak van onderstaande hoekwoning zijn zonnepanelen aangebracht zoals is weergegeven. Wat is de bouwintegratie?
epadv 50402
1
van 1
Antwoord
niet geventileerd
matig geventileerd
sterk geventileerd37
Op bijgaande foto is een PV-systeem te zien. Het PV-systeem op de afbeelding
epadv 51583
1
van 1
Antwoord
is matig geventileerd.is mechanisch geventileerd.
is niet geventileerd.
is sterk geventileerd.38
Twee geschakelde woningen hebben tussen hun dakkapellen elk twee zonnecollectoren geplaatst. De zonnecollectoren hebben alle dezelfde afmetingen. Op welke wijze wordt de beschaduwing van paneel 2 door dakkapel A aangegeven? Door het bepalen van de
epadv 53220
1
van 1
Antwoord
relatieve breedte b
relatieve hoogte h
.relatieve hoogte h
.39
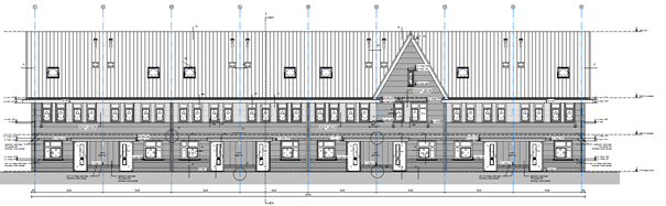
Bij onderstaand project van 26 woningen zijn de (individuele) installaties in de woning gelijk. Er is geen koelinstallatie aanwezig. Het project bevat zowel koop- als huurwoningen. De gebruiksoppervlaktes van de begane grond zijn van alle woningen gelijk. Op de achterzijde van de woningen liggen PV-panelen volgens de plattegrond. epadv 54741vooraanzicht blok Aepadv 54971vooraanzicht blok Bepadv 55201vooraanzicht blok C Wat is juist, met betrekking tot representativiteit?
epadv 55648
0
van 1
Antwoord
Er mag
geen
gebruik worden gemaakt van representativiteit.
Er mag gebruik gemaakt worden van representativiteit. Van alle woningen moeten er minimaal 6 worden opgenomen.Er mag gebruik gemaakt worden van representativiteit. Van alle woningen moeten er minimaal 8 worden opgenomen.Er mag gebruik gemaakt worden van representativiteit.Van alle woningen moeten er minimaal 10 worden opgenomen.40
In een groot woningbouwcomplex is een steekproef gedaan in 112 woningen. Deze woningen zijn daadwerkelijk bezocht door de adviseur. In hoeveel woningen mogen relevante afwijkingen geconstateerd worden door de EP adviseur om gebruik te kunnen maken van representativiteit voor de gelijkende woningen?
0
van 1
Antwoord
1
5621